ワールドアイ都島高倉町 – 投資用マンション・不動産投資|株式会社日本エスト

ワールドアイ都島高倉町

堂々と美しい、スタイリッシュな外観デザイン

基壇部の上質なマテリアルと空へと向かうシャープな垂直ライン。
洗練された印象を与える美しい外観デザインは、上質な暮らしを印象づけます。

物件概要

  • 価格
    2,410万円~3,280万円
  • 総戸数
    60戸
  • 所在地
    大阪市都島区高倉町1丁目227(地番)
  • 竣工日
    2023年9月下旬
  • 最寄駅
    OsakaMetoro谷町線『都島』駅徒歩11分
  • 事業主
    株式会社ワールドアイコーポレーション
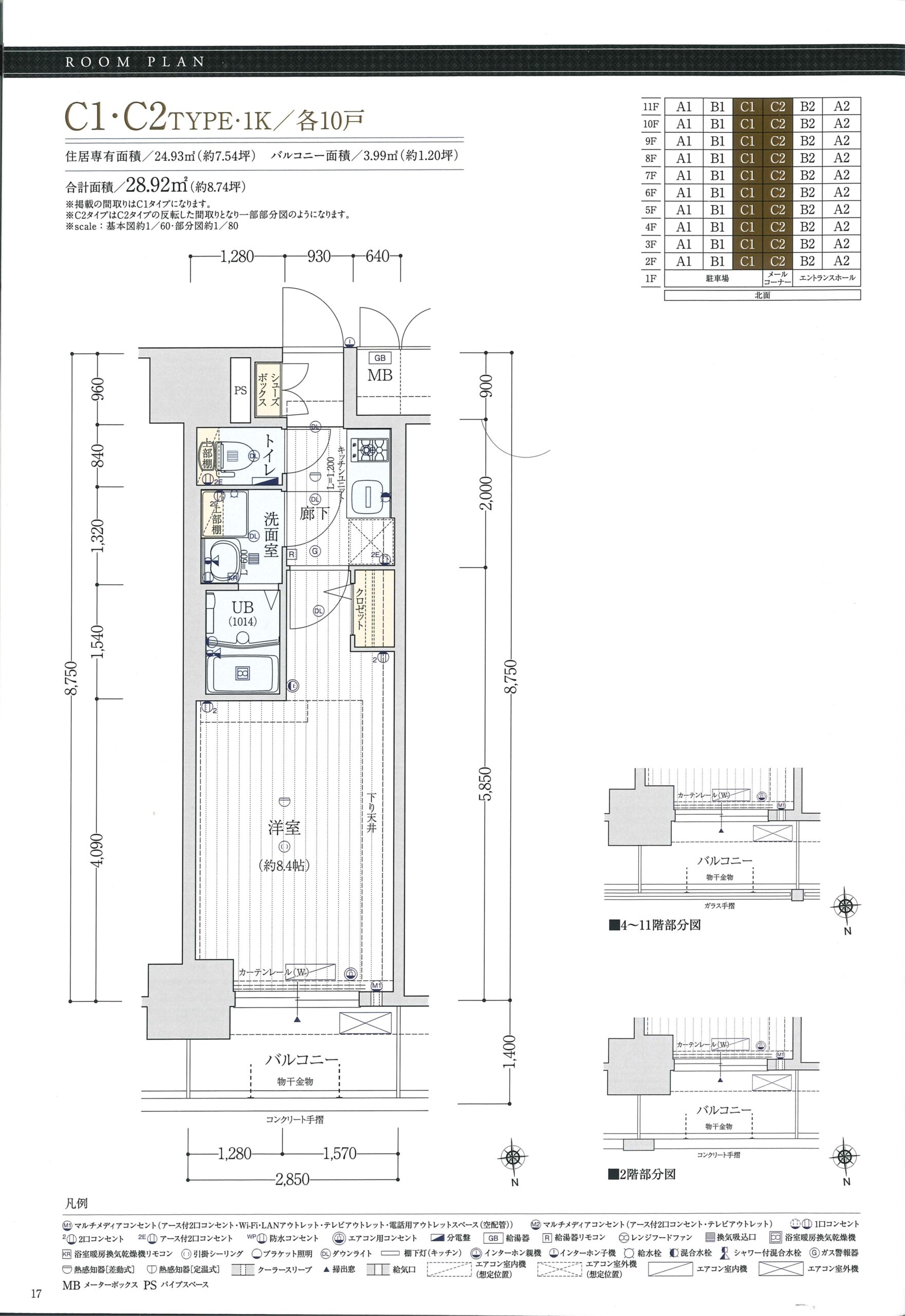
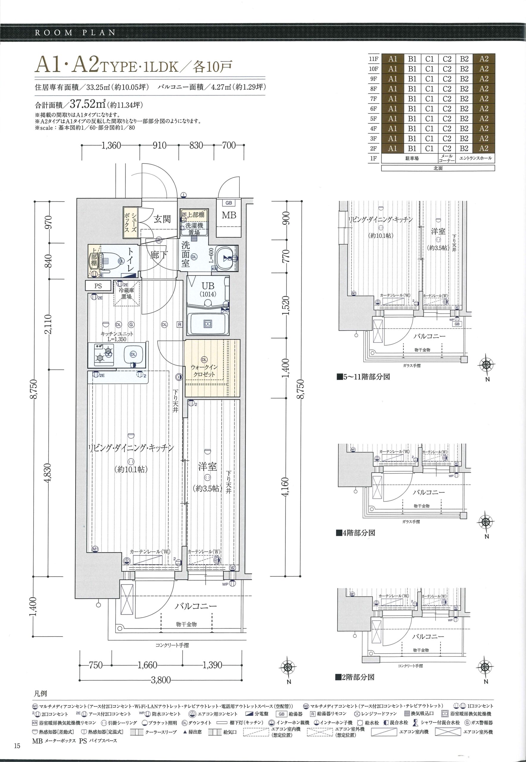
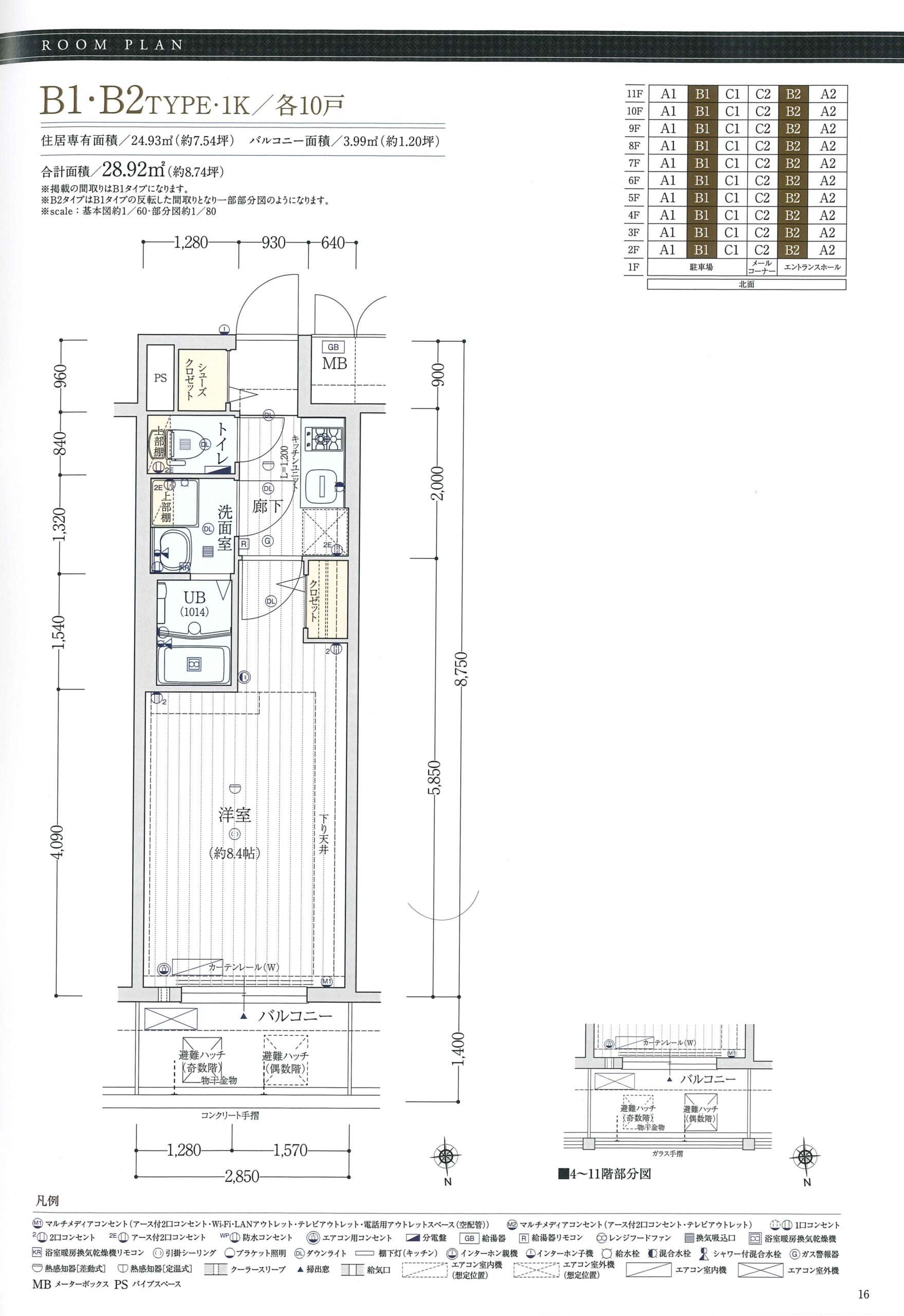
  • 間取り
    1K
  • 施工
    中正建設株式会社
  • 住居専有面積
    24.93㎡・33.25㎡
  • 管理会社
    株式会社マス企画サポート